



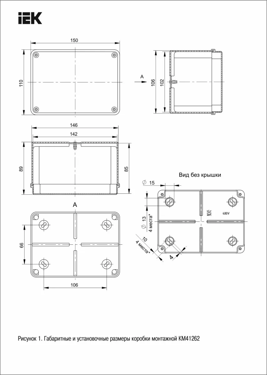
Коробка расп. КМ41262 о/п 150х110х85мм IP55 серая IEK
Код товара
206-6161
Артикул
Марка
IEK
354 ₽
Под заказ
Расширенный обмен / возврат
Вы можете вернуть или обменять купленный товар в течение 60 дней с момента покупки.
Экспресс-доставка
При наличии на нашем складе, отправим в тот же день Яндекс.Доставкой.
Официальный дилер
У всех товаров есть гарантия производителя.
Тип монтажа
Настенно-потолочное крепление
Цвет
Серый
Ширина
110мм
Не содержит (без) галогенов
true
Глубина
85мм
Форма
Прямоугольн.
Диаметр
-мм
Оснащение или установленное оборудование
Нет
Длина
150мм
Рабочая температура
-25...40°C
Рабочая температура, °C (до)
40
Материал
Пластик
Количество вводов
-
Крепление крышки
Винтовое крепление
Степень защиты - IP
IP55
Ввод с тыльной стороны
Да
Возможность состыковки друг с другом
Нет
Крышка
Непрозрачная
Форма крышки
Прочее